Skuffesag ,   - Billed

Kontakt os

Bestil fremvisning

Skuffesag,

SKUFFESAG

Arkitektonisk liebhaverbolig fra 2022 på 412 etagemeter med kompromisløs luksus og enestående atmosfære.

Stille, ugenert og diskret beliggenhed i det attraktive Konge/Dronningekvarter med kun 5 mins gåtur til Roskilde fjord.

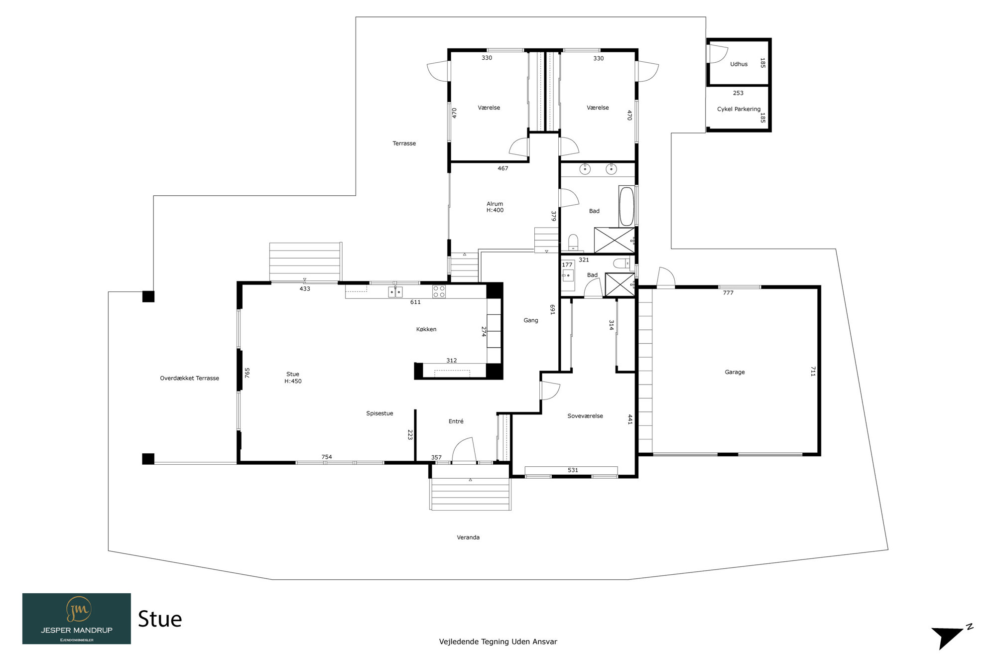
Der findes boliger – og så findes der af og til helt unikke boliger, hvor hver eneste detalje er gennemtænkt, hvor materialerne er nøje udvalgt, og hvor stemningen mærkes fra det øjeblik, man træder indenfor. Denne exceptionelle villa er netop sådan et hjem. En sjældent udbudt liebhaverejendom, hvor alle bygnings- og indretningsmaterialer er fra "øverste hylde". Det er en bolig, hvor kvalitet, æstetik og komfort går op i en højere enhed.

Boligens naturlige samlingspunkt er det spektakulære køkken/alrum og stue, hvor loft til kip og store, elegante vinduespartier skaber et imponerende lysindfald og en helt særlig rumfornemmelse. Her flyder inde- og udeliv ubesværet sammen med direkte adgang til haven og terrassen. Rummet emmer af atmosfære og danner den perfekte ramme om både hverdagsliv og gæstfri middage. Der er indbygget lydsystem fra Hi-fi klubben, så skal du holde fest kan rummet hurtigt omdannes til en "restaurant" og "natklub"!
Forældreafdelingen er indrettet som en privat oase – en eksklusiv suite med walk-in-closet og eget badeværelse udført i smukke materialer og stilrent design fra Vola i bruneret messing. Naturligvis også indbygget lyd. Her er ro, luksus og hotelstemning i hverdagen.

I boligens modsatte ende er der indrettet en separat afdeling til børn og teenagere. Afdelingen er elegant placeret i forskudt niveau. Her venter to rummelige og lyse værelser samt et imponerende badeværelse med både brus og badekar indrettet med Vola i bruneret messing. Et tilhørende opholdsrum giver plads til alt fra TV-stue, kontor legerum m.v. Herfra er der direkte udgang til terrasse og have, så livet kan flyde frit mellem inde og ude.

Kælderen er langt fra traditionel kælder – her opleves den som en fuldt integreret del af boligen. Et stort opholdsrum er indrettet med hjemmebiograf, hvor udstyret medfølger, og hvor filmoplevelser kan nydes i private rammer. En eksklusiv skabsvæg fra Svane Køkkenet rummer vaskefaciliteter med to integrerede vaskemaskiner, tørretumbler, indbygget køle- og fryseskab samt Quooker. Den elegante vinafdeling bag glas tilfører både karakter og stemning. Derudover rummer etagen to store disponible rum med vinduer over terræn samt et luksuriøst badeværelse med dobbeltbrus – naturligvis udført i samme gennemførte og gedigne materialelinje som resten af boligen.

Komforten er på absolut højeste niveau med fjernvarme, Genvex ventilationsanlæg, der sikrer et optimalt indeklima året rundt, BWT-kalkanlæg, fibernet samt integreret lydsystem fra Hi-Fi Klubben i flere af boligens rum.
Til ejendommen hører en stor eksklusiv dobbeltgarage på 64 kvm med klinkegulv, afløb, gulvvarme og fjernstyrede el-porte. Også her er detaljerne på plads med indbygget lyd og praktisk skabsvæg fra Svane Køkkenet. Hertil kommer udhus samt overdækket cykelparkering.

Haven er anlagt med fokus på æstetik og minimal vedligeholdelse. Den sydvestvendte terrasse sikrer solrige timer dagen igennem, mens den store overdækkede terrasse på 33 kvm med fuldt udstyret udekøkken skaber en eksklusiv ramme om lange sommeraftener, grillmiddage og hyggelige stunder med familie og venner.

Her er ganske enkelt tale om en bolig i en klasse for sig – en ejendom hvor arkitektur, luksus og livskvalitet smelter sammen.

En liebhaverbolig, der ikke blot skal ses – men opleves!

Skuffesag,

ANDRE BOLIGER VI HAR TIL SALG