Svogerslev Hovedgade 50, 4000 Roskilde - Billed

Kontakt os

Bestil fremvisning

Bestil salgsmateriale

Svogerslev Hovedgade 50, Svogerslev

Smuk indflytningsklar klassisk murermestervilla med fuld kælder og garage.

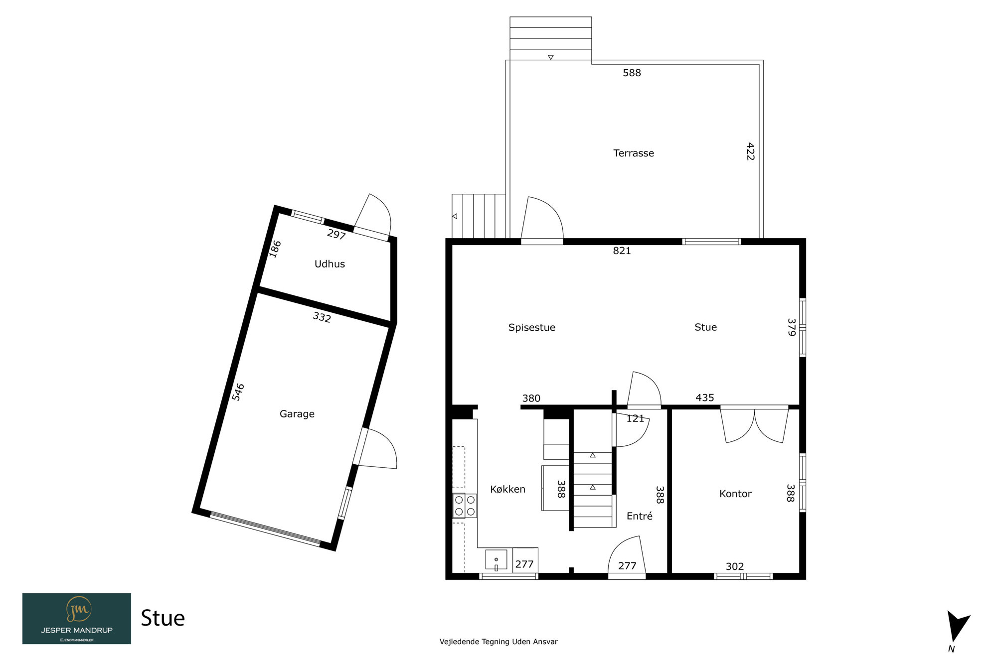
På Svogerslev Hovedgade 50 udbydes denne smukke og karakterfulde murermestervilla med fuld kælder, hvor klassisk arkitektur møder moderne komfort. Ejendommen fremstår yderst velholdt og er gennemgribende opdateret i 2021 med bl.a. nyt tag, nye tagrender, renoverede gulve samt en totalrenoveret og genopbygget 1. sal. God højloftet kælder, som bla. fremstår med renoveret badeværelse/toilet og et nyt bryggers fra 2021.

Allerede ved ankomsten bydes man velkommen i en imponerende hall med smuk snoet trappe til 1. sal, høje vægpaneler og et flot lysindfald, der sætter stemningen for resten af boligen. Stueplan rummer et lækkert køkken med lyse elementer, som ligger i åben forbindelse med den rummelige og lyse spisestue med direkte udgang til en herlig sydvendt træterrasse – perfekt til sommerens måltider og hyggelige stunder med famile og venner. Herudover findes både en hyggelig opholds- og TV-stue samt en ekstra stue, som nemt kan indrettes til hjemmekontor, et ekstra værelse eller hobbyrum. Overalt i stueplan er de smukke plankegulve afhøvlet og ludbehandlede i 2021, samt smukke radiatorskjulere, hvilket understreger boligens elegante og lyse udtryk.

Hele 1. salen er totalrenoveret og genopbygget i 2021 og fremstår yderst charmerende med loft til kip, synlige hanebånd og med et skønt lysindfald. Et rummeligt repos med kig til entréen binder etagen sammen og leder videre til to gode og hyggelige børneværelser samt et dejligt stort forældresoveværelse med direkte adgang til et lækkert badeværelse, hvor der er "kælet" for detaljerne og her er naturligvis med gulvvarme for optimal komfort.

Kælderen byder på god loftshøjde og et overraskende flot og anvendeligt miljø. Her findes to store disponible rum, som kan anvendes til mange forskellige formål, et lækkert badeværelse med brus og toilet, et stort lækkert og praktisk klinkebelagt vaskerum med egen indgang, masser af skabsplads samt integreret vaskemaskine og tørretumbler. Kælderen er god og tør med et behageligt indeklima takket være et installeret Duka ventilationssystem. Derudover er der et praktisk depotrum til opbevaring.

Ejendommen fuldendes af en velfungerende muret garage med el-port samt en forhave med nye hegn og belægning. Dejligt sydvendt have med stor græsplæne, hvor der er masser af plads til boldspil, leg m.v. Sælger har i 2022 opført et nyt havehus og du får i sommerhalvåret stor glæde af den skønne træterrasse, der er hævet til niveau med stueplanet i boligen.

En bolig, der henvender sig til familien, som ønsker klassisk stil, moderne komfort og masser af plads – både over og under terræn.

Ejendommen er meget centralt beliggende med kort gåafstand institutrion, skole, indkøb og offentlig transport, ligesom tilkørsel til motorvej mod København og Holbæk kan nås på få minutter. Naturen spiller en stor rolle i området, med nem adgang til åbne marker, stier og fjordlandskab, som indbyder til gå- og cykelture. Der er kort afstand til badesø, som er meget eftertragtet om sommeren. Samtidig er der kort afstand til Roskildes byliv, kulturtilbud, uddannelsesinstitutioner og transportforbindelser mod København. Kort sagt er Svogerslev et fredeligt og naturnært sted at bo med en god balance mellem landsbyliv og nærhed til en større by. Og et godt tip: Prøv Soverslev Kro - en særlig kolinarisk oplevelse i gåafstand fra ejendommen.

Kom og få en god oplevelse i en bolig, der måske skal være din inden sommeren.

For fremvisning og yderliger info, kontakt ejendomsmægler Jesper Mandrup på 2020 9898.

Svogerslev Hovedgade 50, Svogerslev

ANDRE BOLIGER VI HAR TIL SALG